Spacious Modern Ocean Front Beach House in IndianTown Beach Old Saybrook, CT | House in Old Saybrook

4 Bedroom House in Saybrook Manor, Old Saybrook
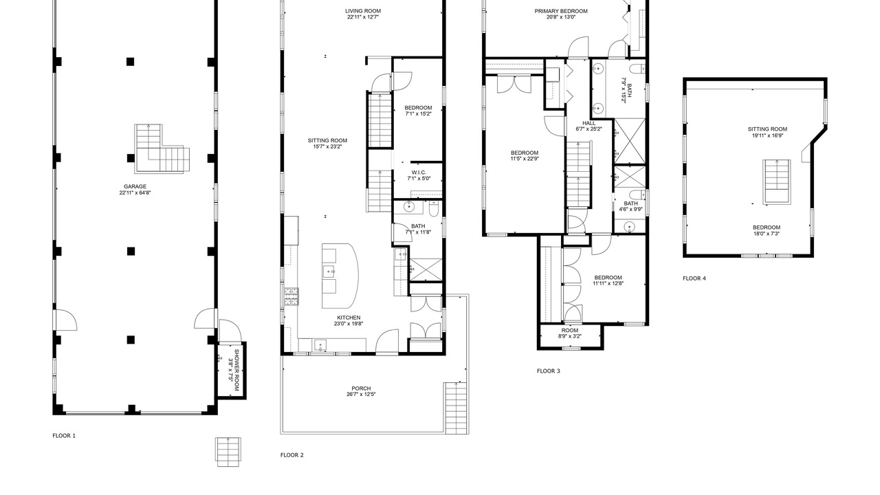
Located in the popular, family community of Indian Town Beach Association, this luxurious 4 bedroom, 3 bathroom beach house sits directly facing the ocean. This modern and upscale home was recently renovated and includes amenities like central A/C, radiant heat, deluxe outside shower, high-speed wifi, sound system with 17 speakers that range throughout the entire house. The house is equipped with a motorize handicap accessible chair that covers from the ground to the first floor. With a third floor consisting of a spacious bonus room that holds a king size bed and Murphy bed, there is plenty of space for overnight guests. Accessible amenities include kayaks, paddle boards, bicycles, beach essentials and much more. It's oversized 5 car door garage also contains a door specially made for golf-carts. This home features direct access to two beautiful beaches, walk/ride your bike within the community to the clubhouse, marine, and playground. If you're looking for a one-of-a-kind retreat that seamlessly combines luxury, comfort, and convenience, look no further than this breathtaking waterfront home! The gated community of Indian Town also provides a sense of security with its private beaches and marina specifically for its residents.
Spacious Modern Ocean Front Beach House in IndianTown Beach Old Saybrook, CT is located in Saybrook Manor. Spacious Modern Ocean Front Beach House in IndianTown Beach Old Saybrook, CT provides accommodation, featuring Air Conditioner, Parking, Balcony/Terrace, among other amenities. This House features Air Conditioner, Parking, Balcony/Terrace, to make your stay a comfortable one.
Spacious Modern Ocean Front Beach House in IndianTown Beach Old Saybrook, CT has 4 Bedrooms , 3 Bathrooms, and max occupancy of 8 people. The minimum rental for this property is 1 nights, but this can change depending on the season you plan on staying. Previous guests have given good rated it, and VRBO labeled it a top-rated House because of the excellent services rendered by the owner or manager of this House, and has consistently provided great experiences for their guests. Most families or guests that use it recommend it to their friends and some of them are repeat guests. House has a friendly neighborhood, and the Saybrook Manor has interesting places to visit. If you want to learn more about the House in Saybrook Manor, such as places to visit and things to do nearby, you can check below to learn more.
Amenities
Facility Overview
-
Air conditioning
-
Heating
-
Bathtub or shower
-
Soap
-
Jetted bathtub
-
3 bathrooms
-
Toilet paper
-
Towels provided
-
Hair dryer
-
Shampoo
-
4 bedrooms
-
Bed sheets provided
-
Dining table
-
Living room
-
Stovetop
-
Coffee/tea maker
-
Oven
-
Paper towels
-
Toaster
-
Microwave
-
Coffee grinder
-
Dishwasher
-
Refrigerator
-
Washing machine and dryer
-
Near laundromat
-
On the beach
-
Beach sun loungers
-
Beach towels
-
Onsite parking
-
Onsite parking options include a garage
-
Welcoming cats and dogs only
-
1 total (up to 20 lbs per pet)
-
Pet friendly
-
Smoke-free property
-
Basketball nearby
-
Kayak on site
-
Cycling nearby
-
Swimming nearby
-
Water sports equipment
-
Bicycle on site
-
Power boating nearby
-
Ecotours nearby
-
Sailing nearby
-
Wildlife and game walks nearby
-
Snorkeling nearby
-
Scuba diving nearby
-
Fitness facilities nearby
-
Games
-
Arcade/game room
-
Stereo
-
Books
-
Video games
-
DVD player
-
Table tennis
-
Smart TV
-
English
-
Near the ocean
-
Near outlet shopping
-
Near the sea
-
Near the bay
-
On the waterfront
-
Near a health or beauty spa
-
Near a hospital
-
On the river
-
Desk
-
Desk chair
-
Children's games
-
Playground
-
Children's toys
-
Children's dinnerware
-
Iron/ironing board
-
WiFi available
-
Barbecue grill
-
Outdoor furniture
-
Garden
-
Balcony
-
Smoke detector installed (host has indicated there is a smoke detector on the property)
-
Carbon monoxide detector installed (host has indicated there is a carbon monoxide detector on the property)
-
Fire extinguisher
-
Deadbolt lock
-
First aid kit
Policies
Extra-person charges may apply and vary depending on property policy government-issued photo identification and a credit card, debit card, or cash deposit may be required at check-in for incidental charges host has indicated there is a carbon monoxide detector on the property host has indicated there is a smoke detector on the property onsite parties or group events are strictly prohibited safety features at this property include a fire extinguisher, a first aid kit, and a deadbolt lock special requests are subject to availability upon check-in and may incur additional charges; special requests cannot be guaranteed this property is managed through our partner, vrbo. you will receive an email from vrbo with a link to a vrbo account, where you can change or cancel your reservation